- Data publicarii: 08.02.2024
- Data modificarii: 22.04.2025
- ID anunt: 226
DE VANZARE CASA P+M
Sântandrei BIHOR
Prezentare generala
Suprafata 134 m²
Camere 5
Descriere anunt
Simsta Residence, propune spre vanzare casa P+M, in Santandrei.
Suprafață teren: 500 mp.
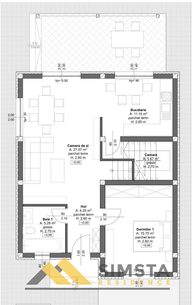
Suprafața construită parter: 86 mp + 19 mp terasa acoperita
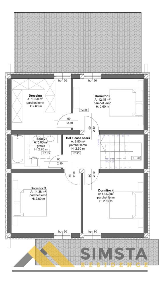
Suprafața construită mansarda: 82mp
Suprafața utila: 134 mp + terasa
Imprejmuire teren
Compartimentare:
Living
Bucatarie
Cămară
4 Dormitoare
Dressing
2 Bai
Terasa
Utilități:
Bransament curent electric
Bransament de gaze naturale
Bransament apa-canal
Preț la rosu: 115000 de euro
Pret semifinisata: 155000 de euro.
Pretul casei difera in functie de faza la care se va preda (la rosu sau semifinisata ). In prezent, casa este la faza de executie.
Proiectul propus spre vanzare se poate vedea realizat in Santandrei.
Silviu Stanciu
Fiecare anunț este verificat de către specialistii nostri








